Umbau Showroom LIGA AG: Bodengrafik mit HP SitePrint

Auch Interessant
20250507_101546
HP SitePrint
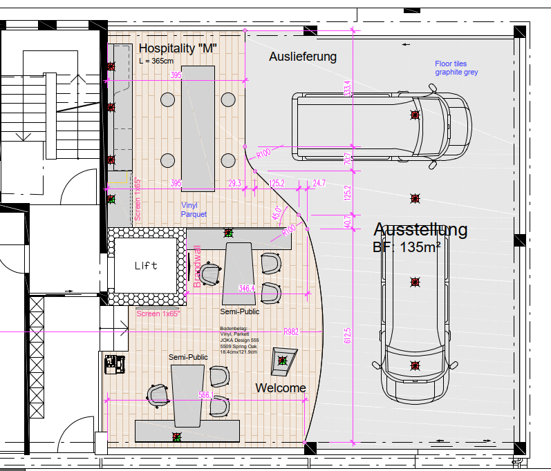
Für den Umbau des LIGA Showrooms wurde mit dem HP SitePrint eine präzise Bodengrafik erstellt. Die komplexe Geometrie mit Bögen verschiedener Radien trennt die Ausstellungs-, Verkaufs- und Beratungsflächen klar voneinander und wurde exakt an Stützen und Wandverlängerung ausgerichtet.
Kontakt
Pfister.Gian
GEOINFO Vermessungen AG
Gian Pfister
0.35
Mit der robotergestützten Layoutlösung HP SitePrint kann das Anzeichnen auf der Baustelle einen echten Effizienzsprung machen.

Ausgangslage und Herausforderungen

Für den Umbau des LIGA Showrooms wurde im Auftrag des Baubüros LARAG AG die Bodengrafik angezeichnet. Dafür kam der HP SitePrint zum Einsatz.

Es wurde dafür eine komplexe Geometrie inklusive Bögen mit unterschiedlichen Radien benötigt, um die verschiedenen Flächen (Ausstellung und Verkaufs- und Beratungsflächen) sauber voneinander zu trennen. Diese Geometrie musste parallel zu den Stützen sowie der Verlängerung der bestehenden Wand entsprechen.

Umsetzung

Mit dem HP SitePrint konnten beim Umbau folgende Arbeitsschritte effizient und präzise erledigt werden:

  • Einmessung Bestand der Stützen, sowie der bestehenden Wand
  • Stationierung anhand bestehender Referenzwand
  • Anzeichnung der Geometrien

 

Vorteile

Die wesentlichsten Vorteile aus der HP SitePrint-Technologie sind die Präzision und der Zeit- und Effizienzgewinn. Sie ist auch bei komplexer Geometrie mit verschiedenen Bögen und Winkeln einsetzbar. Ausserdem kann eine Tinte gewählt werden, die bestehen bleibt.

News und Events

Adrian_Eichrodt_GEOINFO

Digital Shapers 2026: GEOINFO nominiert

Rico-Breu_Marc-Wijnhoff-web4

Wechsel in der Geschäftsleitung der GEOINFO Vermessungen AG

Adrian_Eichrodt_GEOINFO

Digital Shapers 2026: GEOINFO nominiert

Rico-Breu_Marc-Wijnhoff-web4

Wechsel in der Geschäftsleitung der GEOINFO Vermessungen AG

Kontakt
Pfister.Gian
GEOINFO Vermessungen AG
Gian Pfister
No data was found